Menu

Road SS199 Sassari-Olbia lot 8

Sardinia, Italy
Client
ANAS S.p.A

Total Amount
46.284.237 €

Year
2012 – 2016

Current status
realized

Services
Constructive Design of 8.3 km road SS 199 adaptation to cat.B1, 1 Viaduct (78 and 127 m), 6 Bridges, 1 inclined railway overpass, 1 junction, Landscape design and Environmental Monitoring, Archeology

The road track of Lot 8 has a total development of 8.392,26m and begins at the end of adjacent lot 7 to km 68 + 600. The project continues the alignment of lot7 in line with the existing layout, presenting in the first section a 3,75m roadway extension for the acceleration and deceleration lanes for access to the existing fuel station . The extension of the north side roadway ends at km 69 + 097, thus affecting Lot 8 for 497m. The project respects the existing SS199 planimetric position throughout its development, with the exception of a slight deviation, on the north side, to the 72 + 500 km. The existing road, mainly agricultural, interferes with the track at several points, with a series of underpasses, which will be rebuilt with a useful height variable between 4.18 and 5.56m and a width of 6.50m (5m), which guarantee the continuity of exercise on the North / South axis of the local road. Except as part of the local roadworks, an overpass, scheduled at the start of the lot, at km 69 + 026, with a 9 meter wide track. For any area adjacent to the new road body it was deemed necessary in the Expertise to modify the size of the Subsoil “SO05”. The main interference of the track, similar to those of the existing SS597, consists principally of the existing single-track railroad at km 69 + 533.87 for which a new railway overpass is planned for the second track. For the main waterways, there are 6 bridges, with 15 to 35 m lights and three viaducts, one on the Rio Palasole 3-Camp, another for the Enas junction, two-span, and the viaduct on the Riu Enas which has A 168m development on 4 camps. Below is a list of the main works:

  1. Bridge at km 69 + 320
  2. Bridge – secondary roadway at km 69 + 320
  3. Bridge – Secondary road to km 69 + 320
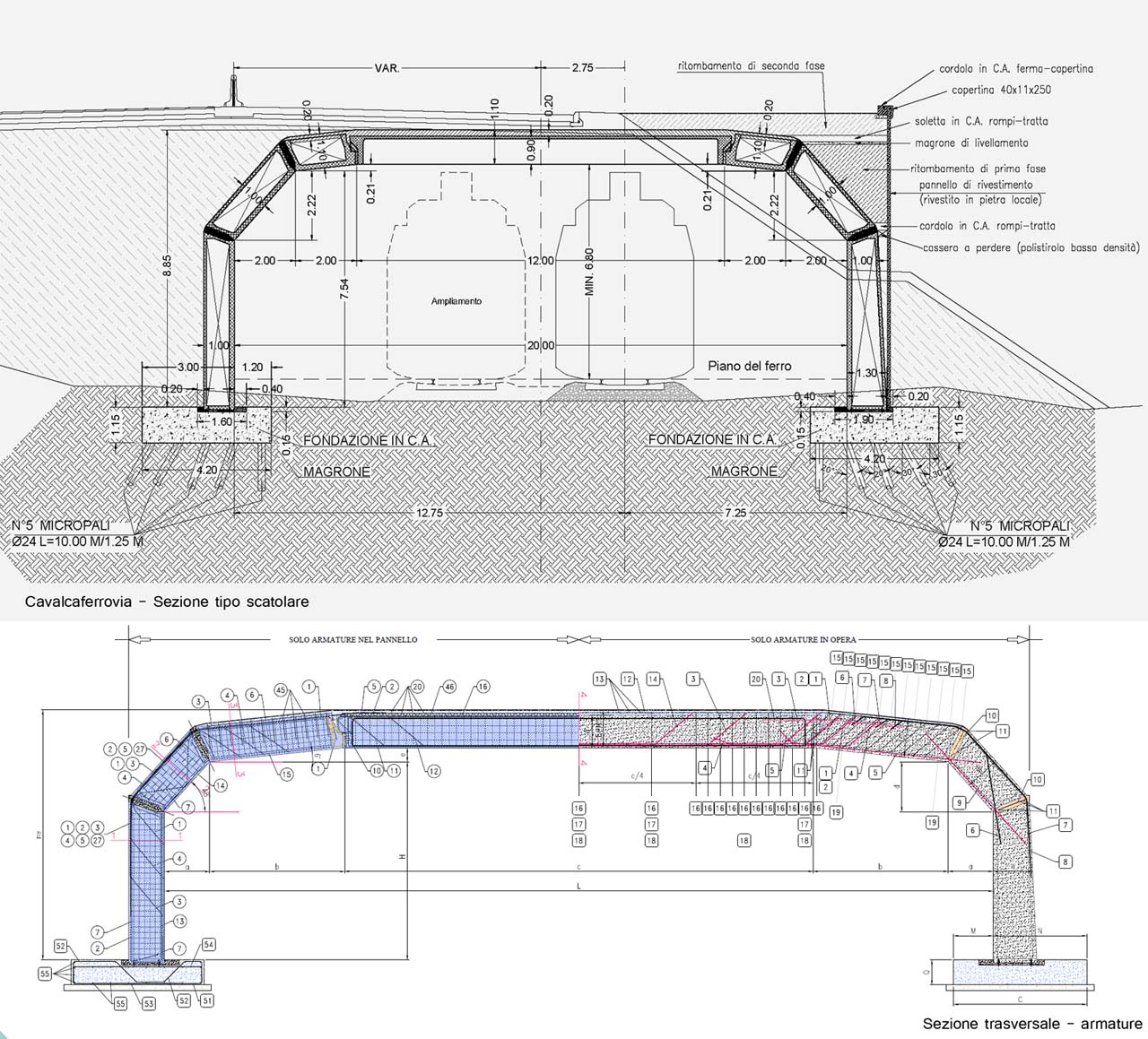
  4. Railway overpass at km 69 + 533.87
  5. Viaduct Palasole to km 70 + 116
  6. Bridge to km 70 + 855
  7. Viaduct to km 70 + 900 – Enas passage
  8. Bridge L = 35 to km 72 + 588

The project covered all the disciplines, and in particular the rail track interference, providing a complete and functional project, in particular to maintain road and rail service. Approximately 865 drawings have been produced, of which approximately 355 are related to the road, 270 those related to structures, about 60 to hydraulics, while the remaining ones have been related to plants, environmental monitoring, geology, safety plan and coordination and construction.